Potenciar el Contexto
Minimalismo, unión y respeto hacia el entorno
El planteo es básico y determinado por los usos actuales, pero sin descuidar la atención en los detalles. La intención de diseño de este proyecto fue respetar y potenciar el contexto, de alto valor paisajístico.
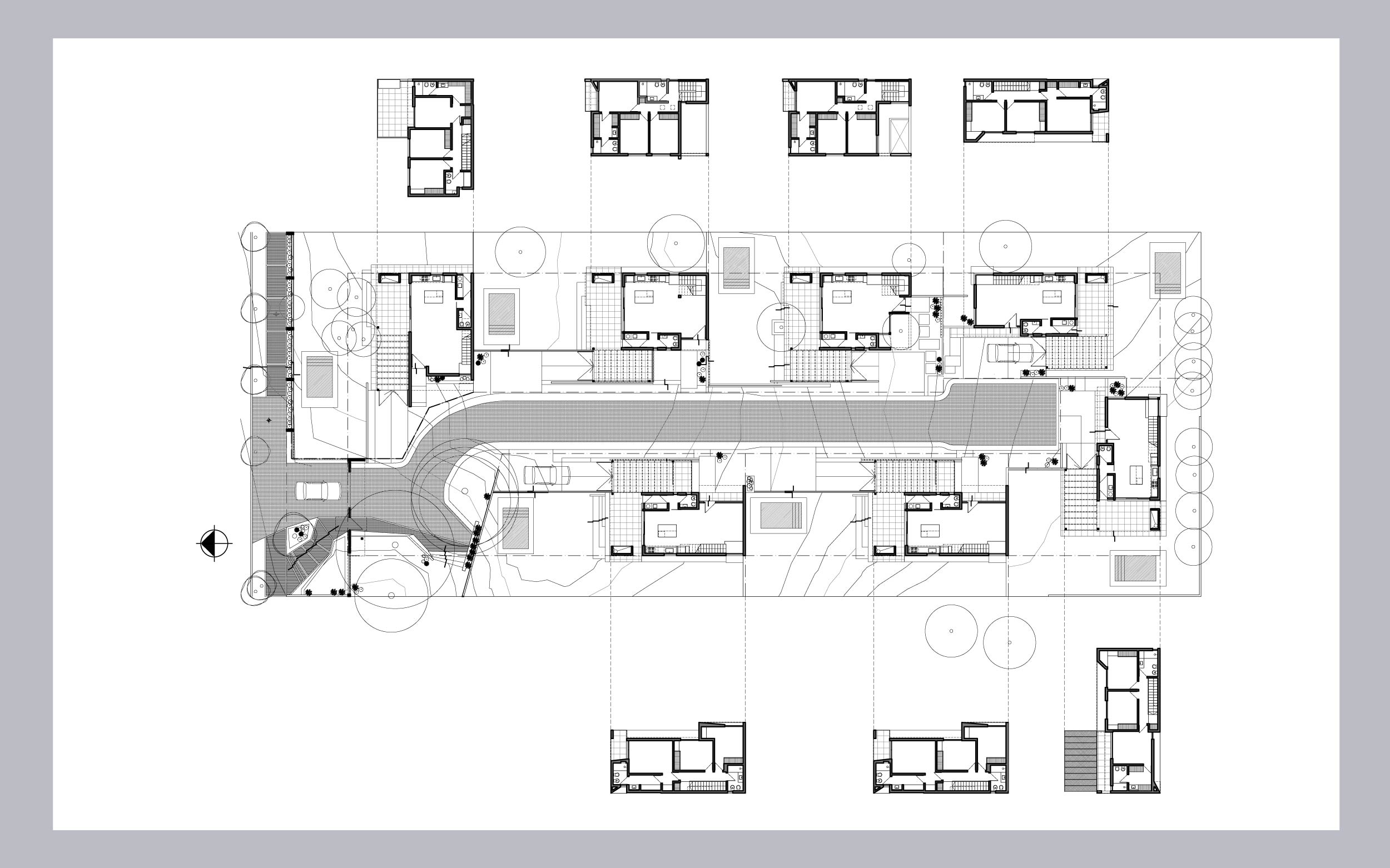
Este complejo denominado Becasinas, es un housing que se compone de 7 unidades exentas, conformadas con el propósito de aprovechar la amplitud y características de los terrenos; de esta premisa, se configuraron espacios libres y diversos, rodeados de un verde rico y variado.
- El lujo de los detalles
Este proyecto es concebido a partir de la decisión de un grupo de personas con afectos e ideas en común de hacer algo. Esa concepción de generar algo en conjunto, encontraba un canal ideal en la arquitectura, con todo lo que conlleva como proceso creativo, ejecutivo, constructivo, y también desde lo significativo o simbólico.
Por otro lado, la elección de la tipología o formato denominado Housing, pero entendiéndolo fundamentalmente como un lugar de CASAS, es decir, UN HOUSING DE CASAS, fue una de las decisiones más importantes. Eso definió la búsqueda de hacer algo distinto, aportar un diferencial, no limitarse al emprendimiento en sí mismo como producto, sino también disfrutar el proceso, poner el foco en el resultado pero sabiendo además el cómo se llegó hasta ahí.
Que desde el inicio del Proyecto esa fuera la intención, hizo que este proyecto busque su esencia en pequeños detalles dentro del formato housing que admite diferentes resoluciones, en base a las dimensiones del sitio, a la zona, a la ordenanza y reglamentaciones, a las intenciones de diseño, etc.; pudiendo haber tipologías como housing de duplex, tipologías donde una única unidad se repite, o tipologías donde todas las unidades están dispuestas apareadas compartiendo medianeras por ejemplo. Así podría explicarse la elección del sitio, en un barrio como Villa Warcalde y alrededores, reconocido por la riqueza natural de su vegetación, su topografía y su calidad ambiental.
Premisas
Así, desde el origen de las premisas estaba subyacente la idea de trabajar con unidades exentas, rodeadas de verde, aprovechando y potenciando la amplitud de los espacios a diseñar, generando espacios libres diversos y amplios, uniéndose a la naturaleza existente, respetando ese entorno rico y variado.
Se define la escala del proyecto entonces como un Housing de Casas, cuya cantidad según la ordenanza es de 7 unidades, con tipologías de aprox. 145m2 cubiertos y 15m2 de pérgola, exentas, de dos plantas, con patio y piscina individual. Sumado a eso, espacios exteriores comunes amplios, tanto dentro del conjunto como en sus accesos y fachada hacia el exterior, una plaza común con muy rica vegetación y un ingreso común único, seguro y jerarquizado.
Inserción
Ya hablamos del sitio y su vegetación abundante, su topografía con desniveles y el entorno en el que se encuentra como elementos de alto valor paisajístico, por lo cual la intención de diseño fue respetarlos y potenciarlos, poder utilizarlos a favor de la arquitectura y del ambiente buscado, valorarlos como recursos fundamentales de los cuales valerse para el proceso de diseño.
Se tuvo en cuenta esa topografía irregular del terreno para enfatizarla, no intentar negarla, sino utilizar los elementos necesarios como muros de contención en hormigón visto y en piedra, como así también el estudio de la implantación de cada casa en particular y su adaptación no sólo a la forma del lote, sino también a estos elementos naturales propios del sitio. No obstante, teniendo en cuenta las necesidades tipológicas actuales, de ambientes sociales únicos e integrados, las casas no tienen desniveles en su interior, sino que los desniveles se resuelven en las transiciones entre el exterior y el interior, entre los espacios comunes y los espacios privados, en las galerías o en los ingresos, en el pórtico de ingreso al complejo y en su entorno natural inmediato.
Tipologías
Funcionalmente, el planteo es básico y determinado por los usos actuales. Una planta baja como el ámbito unificado de reunión, de compartir y compañía. Es decir, un ambiente integrado total, conformado por hall, estar, comedor, cocina con isla, galería (y continuidad en la cochera para permitir usos mixtos). Una planta alta donde el pasillo y la escalera sean protagonistas, simplemente por un recorrido agradable y cómodo. Y las tres habitaciones donde la suite aprovecha alguna cualidad del entorno desde su balcón o terraza. Dependiendo cada caso, las copas de los árboles, la plaza interior, el entorno inmediato, la conexión con el patio o las vistas más lejanas o panorámicas.
Formalmente, como premisas fundamentales del diseño se establecía que las casas no estén apareadas y que no sean todas iguales, que tengan las variantes de diseño necesarias para que se reconozcan una de otra, pero que a la vez tengan las suficientes similitudes o lenguaje en común qe se reconozcan como parte de un todo. Por esta premisa y por la necesidad de adaptarse a la forma de cada lote individual y a la topografía del sitio, y tambien respetar el código de edificación, el planteo se conforma por una parte dura y una parte blanda.
La parte dura que se repite en las 7 casas prácticamente sin alteraciones , es un núcleo conformado por la cocina con isla, el lavadero separado, el toilette, la cochera y la galería. Como así también la escalera, pero en este caso hay cinco iguales por ser las tipologías más rectangulares y otras dos iguales entre sí por ser las tipologías más cuadradas.
La parte blanda es la que termina de conformar el ambiente integrado de la planta baja, es decir el hall, el estar y el comedor. Este sistema es el que se modifica levemente para lograr tal diferenciación entre las distintas unidades. La planta alta acompaña por un lado esas pequeñas modificaciones, y por otro lado busca las mejores orientaciones posibles para las aberturas y los balcones o terrazas.
La cochera y el estacionamiento de cortesía en el interior del complejo se consideraron como un tema fundamental. Intentar evitar que la calle interna del complejo esté ocupada permanentemente por autos y limitada en otros usos (recreación, socialización, permanencia). Así, el estacionamiento dentro de cada lote incluye dos situaciones: una de estacionamiento definitivo, la cochera propiamente dicha, con portón de acceso propio, para darle las condiciones necesarias de privacidad y usos mixtos con la galería y patio, que sería el que se utiliza al final del día o en largas estadías, y la otra situación sería el estacionamiento temporal para el uso diario de entradas y salidas que cada día es más frecuente, considerando que en los usos actuales el auto tenga un espacio que no interfiera el de la calle y a la vez cómodo para ingresar a la casa.
Áreas comunes
Si bien el pórtico de ingreso común existe no sólo por las necesidades de jerarquizarlo y darle identidad al complejo, sino también por la importancia de darle seguridad a su interior, la intención fue que la riqueza paisajística y arquitectónica se sintiera no sólo hacia adentro sino también hacia afuera, que fuera agradable recorrer esa vereda, ver las copas de los árboles añejos a través del pórtico o por encima del mismo, antes de ingresar o simplemente al caminar esa cuadra, sumarle elementos paisajísticos como plantas de pequeño y de mediano porte como agapantus y fotiñas entre otras, canteros materializados en piedra, durmientes de quebracho, etc, y fundamentalmente iluminados por la noche enfatizando a cada uno con sus cualidades, la importancia de la vegetación en sus diferentes escalas y el emplazamiento de la arquitectura con el diseño, la forma y la combinación de los materiales.
Lenguaje
Los elementos combinados no buscan mimetizarse con lo natural, sino reducir el impacto de lo construido con una transición:
De lo natural del verde existente, de árboles y de césped en pendiente con la depresión del terreno transversal a todo el ancho del mismo, que genera la acción de bajar y volver a subir, se erigen muros de piedra tipo pirca y hormigón visto que hacen las veces de basamento y de contención. Luego, en la planta baja tenemos la continuidad del hormigón visto de las bases en tabiques hechos con encofrado de tablas de madera de pino para darle rusticidad. Y aprovechando sus cualidades de calidez y textura aparecen colocados en vertical durmientes de quebracho blanco, materializando cerramientos laterales como detalles dentro de un recorrido extenso de la calle interna para romper la monotonía. Por detrás y por arriba comienzan a aparecer los elementos de chapa oxidada, tanto en aberturas como en revestimiento de muros y en rejas del cerramiento de los patios. Así, el color del óxido dialoga con el verde. Por ejemplo, en las rejas de metal desplegado preparadas para que el jazmín crezca y se desarrolle trepando como cerco verde; y en la planta alta se suma a los revestimientos de chapa los muros en color negro, para dialogar con las copas de los árboles de mediano y de gran porte. Entre todos esos elementos resaltan los revoques finos blancos. La intención fue equilibrar un poco lo natural con lo construido, siendo que todos los elementos de la construcción por volumen iban a ser dominantes, al tener algunos elementos en chapa y en color negro, éstos hacen que el color blanco no sea tan excesivo y a la vez se consideró que tanto la chapa como el negro actúen bien de fondo para realzar el verde de lo natural.
Materiales
A lo ya expresado para el lenguaje exterior, se suma las barandas de vidrio para pasar desapercibidas y generar brillos interesantes. En el interior se refleja la continuidad de los materiales del exterior, el hormigón visto como detalle en el ambiente principal, la chapa oxidada de las aberturas, el vidrio en la baranda de la escalera, el color blanco de las paredes de yeso y la escalera de hormigón visto en forma de cinta. A eso se le agrega una excelente calidad de los materiales de terminaciones, ya sea en pisos y revestimientos, como en las aberturas, los amoblamientos y sus herrajes, mesadas, griferías, sanitarios y bachas.
La iluminación de las fachadas y del interior refleja la misma concepción del gusto por los detalles y de resaltarlos tanto como lo buscado, aprovechando la riqueza del entorno natural.
PLANTAS, VISTAS Y CORTES CASA 2
PLANTAS, VISTAS Y CORTES CASA 6
UBICACIÓN: Villa Warcalde Provincia de Córdoba
AÑO: 2020-2023
SUPERFICIE TOTAL: 145m2 cubiertos
PROYECTISTA: ARQ. MARTÍN FERNÁNDEZ CORNA
FOTOGRAFÍAS: ARQ. ROGER BERTA






























